
现在的农村自建房,大家追求的早已不是层数越高越好,而是住得舒服、看起来高级。然而,很多户型在设计时往往忽略了最重要的两点:空间的呼吸感与院落的私密性。
传统的单院落往往面临前面热闹、后面黑屋的尴尬,而这套3.2m面宽的新中式住宅,通过极具前瞻性的南北双庭院布局,完美解决了这些痛点。它不仅实现了物理意义上的南北通透,更通过建筑手法的巧妙运用,将功能空间与自然景观进行了一次深度的化学反应。
如果你正打算在老家动土,这套兼顾养老实用与现代审美的设计,绝对值得你细细研读。

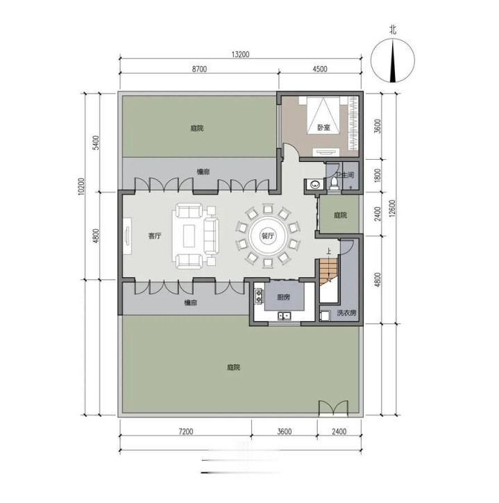
一、 庭院布局:南北双院,动静分离
南向景观大院: 入户即是大面积的南庭院。这里不仅是入户的视觉焦点,更是家庭主要的户外活动区。无论是搭建凉亭、开辟菜园,还是日常晾晒,空间都绰绰有余。
北向私密庭院: 北侧设置了尺度适中的私密庭院。它像是一个天然的“空气调节器”,让北侧的卧室也能推窗见绿。
连廊过渡: 建筑南北两侧均设计了开敞的连廊(灰空间)。连廊的存在,模糊了室内外的界限,即使是雨天,也能在廊下品茗听雨,享受半户外生活的惬意。

二、 空间布局:科学动线,赋能全龄生活
建筑内部规划摒弃了传统农宅小房间、窄过道的局限,采用开放式的现代布局,充分考量了农村家庭从柴米油盐到三代同堂的实际居住需求。
1层:社交与养老的平衡艺术
客餐厅大通透设计: 步入室内,首先映入眼帘的是中心区域的巨幕级横厅。客厅与餐厅无缝相连,形成一个视线开阔的家族社交核。餐厅特意预留了足以摆放大型圆桌的空间,无论是日常团圆还是筹备乡间宴席,都能游刃有余。大面积的落地窗将南北庭院的绿意引入席间,让每一次用餐都伴随着自然的呼吸。
温情老人房,细节处的孝心: 考虑到家中长辈的居住习惯,一层北侧布置了独立卧室。该房间远离玄关嘈杂区,紧邻干湿分离的公卫,缩短了长辈起夜的动线,降低了滑倒隐患。这种首层养老的设计,让长辈无需攀爬楼梯,生活更加从容体面。
高效家政动线,烟火气里的秩序: 厨房、洗衣房与室外庭院形成了高效的家政黄金三角。洗衣房设有通往庭院的侧门,洗好的衣物转步即可晾晒在阳光满溢的南院;厨房产生的厨余垃圾也能通过侧门快速清理,确保室内洁净无异味。

2层:私享静谧的家庭成长空间
多功能起居厅,家人的“第二客厅: 二层中心位置预留了宽敞的多功能厅。它是卧室与外部环境的缓冲地带,既是家人们睡前围坐小酌、观看投影的私密起居室,也可以作为孩子的游戏区。这种动静分区的设计,确保了上下两层互不干扰。
主卧小家化,独享私密仪式感: 二层南向主卧采用了现代流行的**“套间式”**布局。独立的衣帽间不仅解决了换季收纳的烦恼,更赋予了居住者尊贵的私享体验。清晨推开窗,南庭院的整片景致尽收眼底。
超阔星空露台,生活空间的无限延伸: 位于二层西侧的超大露台,是全屋的点睛之笔。它打破了室内外的物理隔绝,是夏夜观星、冬日围炉煮茶的绝佳场所。同时,露台也为二层提供了充足的户外活动空间,无论是作为空中花园还是休闲烧烤区,都能承载生活中的无数浪漫瞬间。

三、 采光与通风:会呼吸的房子
优越的采光与通风是这套户型的核心优势:
全明采光: 借由南北双庭院,建筑几乎实现了360°无死角采光。客厅与餐厅通过南北通透的大开窗,将光线自然引入室内,即使是阴天,室内也依旧明亮。
穿堂风设计: 南北对流的窗户布局,形成了极佳的“烟囱效应”,在炎炎夏日能带走室内热量,保持空气清新。
挑空视界: 局部区域与庭院上空的呼应,让空气流动更加顺畅,真正做到了一室清风。

这栋房子不再是村头巷尾那座冰冷的火柴盒,而是一个真正会呼吸的生命体。南北双院的设计,不仅是为了采光和通风,更是为了给生活留下一片可以呼吸的空白。
在这里,清晨有鸟鸣唤醒,午后有阳光洒进客餐厅,傍晚则能在露台守候一场壮丽的落日。它是长辈安享晚年的福地,也是年轻人节假日逃离城市喧嚣的避风港。在故乡的土地上,盖一栋这样的宅院,不仅是生活水平的提升,更是对家庭责任与中式居住文化的深情致敬。
愿每一位想要回乡建房的朋友,都能拥有一方属于自己的天地。春有百花秋有月,夏有凉风冬有雪,这大概就是我们奋斗一生,最想送给家人的礼物。
信钰证券提示:文章来自网络,不代表本站观点。